El sklopná zrcátka
- fisa
- Nováček

- Příspěvky: 176
- Registrován: 17.10.2011 21:06
El sklopná zrcátka
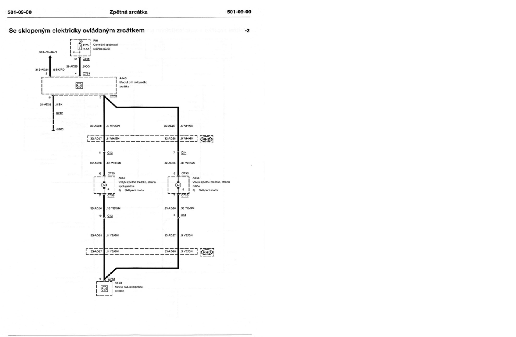
Zdravim. Mám takovej hloupej dotaz.Mám zrcátka po FL se sklápěním mám i ovládání se sklápěním ,ale mám i auto před FL. Dá se to nějak dodělat? Téma v návodech mám projitý, ale chtěl bych zachovat sklápění jen na povel ovladače.Díky moc Fíša
Mondeo Mk.3 2002 3.0 ST
Mondeo Mk.4 2008 2,0 TDCi před Fl

Mondeo Mk.4 2008 2,0 TDCi před Fl

-
krenda
- Test driver

- Příspěvky: 2668
- Registrován: 25.12.2011 16:56
- Bydliště: Novojičínsko
Re: El sklopná zrcátka
Ještě ti chybí hnědé relé pro ovládání sklápění zrcátek a vzhledem k tomu, že to máš před FL, tak natahat komplet dráty. Do dveří, ve dveřích, od gemu,... Kdyby se ti s tím nechtělo drbat, tak bych zrcátka uživil, mám komplet přípravu na ně
je: Ford S-Max, 09/2020, 7míst, 2.0 ecoblue, 140kW, 4x4
bylo: Ford Focus, 09/2020, hatchback, 2.3 ecoboost, 228kW, ST
bylo: Ford Mondeo, 09/2013, kombi, 2.0 SCTi 202,3kW, Titanium S
bylo: Ford Focus, 09/2020, hatchback, 2.3 ecoboost, 228kW, ST
bylo: Ford Mondeo, 09/2013, kombi, 2.0 SCTi 202,3kW, Titanium S
-
gines
- Zkušený

- Příspěvky: 1780
- Registrován: 20.10.2008 17:53
- Bydliště: Plzeň
- Kontaktovat uživatele:
Re: El sklopná zrcátka
Už to někdo dodělával do předfl?
Kdo je online
Uživatelé prohlížející si toto fórum: Žádní registrovaní uživatelé a 2 hosti

