digiklima mondeo funkce před a po FL
- jenikl
- Nováček

- Příspěvky: 177
- Registrován: 19.08.2010 20:26
- Bydliště: Heřmanova Huť, Plzeň-sever
Re: digiklima mondeo funkce před a po FL
Je, to je super, to se hodí, už jsem se chystal na dodělání toho čidla uprostřed, tak to alespoň nebudu mít prohozený..
Ale myslel jsem ty spínače nad klimou.. Na starým před FL je víc vodičů, na nových konektorech je jich míň.. Mám to dát jen podle barev a zbytek nezapojovat?
Ale myslel jsem ty spínače nad klimou.. Na starým před FL je víc vodičů, na nových konektorech je jich míň.. Mám to dát jen podle barev a zbytek nezapojovat?
Ford C-Max 2,0 TDCi 100kW Titanium BJ10/2008-EZ02/2009
- eizo
- Nováček

- Příspěvky: 80
- Registrován: 15.03.2010 20:03
Re: digiklima mondeo funkce před a po FL
Jo je to o pár stránek zpátky, barvy seděj akorát jedna barva je dvakrát, tak to musíš vyzkoušet.
Ford Mondeo 2.0 TDCi (1998ccm/96kW/130HP) r.v.2002
-
Localek
- Nováček

- Příspěvky: 6
- Registrován: 10.10.2011 21:21
Re: digiklima mondeo funkce před a po FL
Zdravicko mam doma ten panel po FL predtim jsem mel normalne pred FL a manual chci se zeptat jestli v tom je velkej rozdil v zapojeni nebo jestli staci dle tech schemat zde.. zarazi me ze vlastne na manualu je o jeden konektor vic .. otacky ventilatoru nekdo nejaka rada ?
- jenikl
- Nováček

- Příspěvky: 177
- Registrován: 19.08.2010 20:26
- Bydliště: Heřmanova Huť, Plzeň-sever
Re: digiklima mondeo funkce před a po FL
Neměl by někdo na prodej čidlo do klimy? To co musím přidat do výdechu nad středovým panelem?
Prosím Prosím.. Koupím, kdyžtak SZ, pošlu adresu..
Prosím Prosím.. Koupím, kdyžtak SZ, pošlu adresu..
Ford C-Max 2,0 TDCi 100kW Titanium BJ10/2008-EZ02/2009
- Lari
- Zkušený

- Příspěvky: 1490
- Registrován: 02.02.2008 03:18
- Bydliště: Jihlava
Re: digiklima mondeo funkce před a po FL
Ahoj!
Dneska Ti mrknu,ale myslím,že mám ještě z dob přestaveb..
Dneska Ti mrknu,ale myslím,že mám ještě z dob přestaveb..
Byl-Ford Focus 1,8 TDDi r.v. 2000,16" ALU, xenony,,4el.okna,,BC, webasto, EIBACH,ST170 LOOK, DIGI klima, motor 1,8TDCi 85kW,tempomat,ABS,ASR

- jenikl
- Nováček

- Příspěvky: 177
- Registrován: 19.08.2010 20:26
- Bydliště: Heřmanova Huť, Plzeň-sever
Re: digiklima mondeo funkce před a po FL
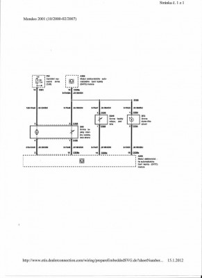
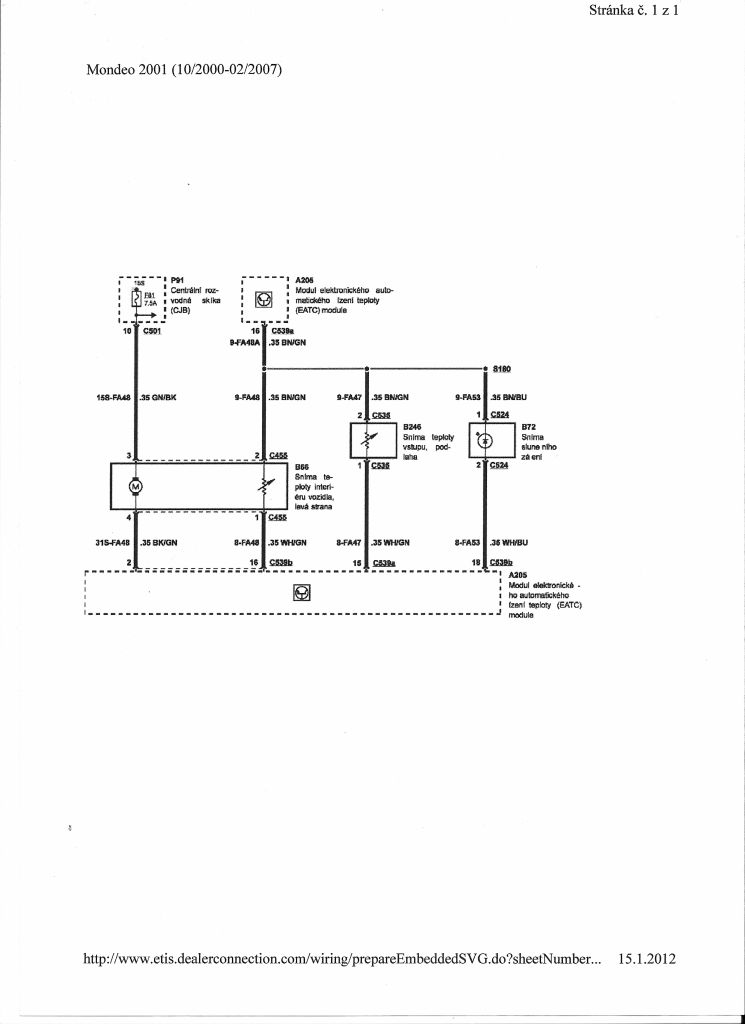
Tak jsem dneska dal za středový panel do výdechu čidlo a jak jsem si znova 2x pročetl tohle vlákno, tak mám přidat ještě jedno čidlo na výdech na nohy? Koukal jsem na to posledně přidaný schéma a tam jsou napsaný přidaný dvě čidla, jedno dolů a jedno na střed.. To ta stará verze měla jen jedno čidlo na okno?
Jde mi o to, že z černého konektoru vytáhnu PIN16 a dám ho na PIN20 do bílého konektoru.. A na ten samej pin ještě připojím od čidla ze středu a nohou jeden pin..
Otáčky ventilátoru mi nešly regulovat kvůli tomu, že sem měl odpálenej ovladač klimy, jak jsem aktivně přepojil na starý nepřepíchaný piny novej ovladač po FL.. Dal sem novej a konečně jde regulovat otáčky normálně.. Zapojím čidlo na střed a uvidim, co mi hodí diagnostika klimy..
Lari, děkuji moc za čidlo, ale asi budu potřebovat ještě jedno
Jde mi o to, že z černého konektoru vytáhnu PIN16 a dám ho na PIN20 do bílého konektoru.. A na ten samej pin ještě připojím od čidla ze středu a nohou jeden pin..
Otáčky ventilátoru mi nešly regulovat kvůli tomu, že sem měl odpálenej ovladač klimy, jak jsem aktivně přepojil na starý nepřepíchaný piny novej ovladač po FL.. Dal sem novej a konečně jde regulovat otáčky normálně.. Zapojím čidlo na střed a uvidim, co mi hodí diagnostika klimy..
Lari, děkuji moc za čidlo, ale asi budu potřebovat ještě jedno
Ford C-Max 2,0 TDCi 100kW Titanium BJ10/2008-EZ02/2009
- Lari
- Zkušený

- Příspěvky: 1490
- Registrován: 02.02.2008 03:18
- Bydliště: Jihlava
Re: digiklima mondeo funkce před a po FL
Tam stačí dopojit jen to jedno čidlo navíc do toho výdechu za panelem...
Byl-Ford Focus 1,8 TDDi r.v. 2000,16" ALU, xenony,,4el.okna,,BC, webasto, EIBACH,ST170 LOOK, DIGI klima, motor 1,8TDCi 85kW,tempomat,ABS,ASR

- eizo
- Nováček

- Příspěvky: 80
- Registrován: 15.03.2010 20:03
Re: digiklima mondeo funkce před a po FL
Ale já musel přidat ještě na výdech dolů, jinak to pořád hlasilo chybu jednoho čidla a netopilo to.
Ford Mondeo 2.0 TDCi (1998ccm/96kW/130HP) r.v.2002
- jenikl
- Nováček

- Příspěvky: 177
- Registrován: 19.08.2010 20:26
- Bydliště: Heřmanova Huť, Plzeň-sever
Re: digiklima mondeo funkce před a po FL
Právě, tam by mělo být ještě třetí čidlo dole na nohy, podle toho, co jsem vyčetl ze schéma.. A to tam není, jestli se nemýlím, ne?
Takže tam zůstane neosazený pin 9 na bílém konektoru, ale to pak bude klima hlásit chybu a na nohy to nebude regulovat, páč nebude mít hodnotu z čidla, ne?
Takže tam zůstane neosazený pin 9 na bílém konektoru, ale to pak bude klima hlásit chybu a na nohy to nebude regulovat, páč nebude mít hodnotu z čidla, ne?
Ford C-Max 2,0 TDCi 100kW Titanium BJ10/2008-EZ02/2009
- eizo
- Nováček

- Příspěvky: 80
- Registrován: 15.03.2010 20:03
Re: digiklima mondeo funkce před a po FL
Přesně tak, a potom to netopí když to začne foukat dolu, protože když není čidlo tak je nekonečnej odpor, a řídící jednotk si myslí že teplota vzduchu který fouká z topení je teplejší než požadovaná teplota.
Ford Mondeo 2.0 TDCi (1998ccm/96kW/130HP) r.v.2002
- jenikl
- Nováček

- Příspěvky: 177
- Registrován: 19.08.2010 20:26
- Bydliště: Heřmanova Huť, Plzeň-sever
Re: digiklima mondeo funkce před a po FL
Hmm, takže sháním druhé čidlo 
Ford C-Max 2,0 TDCi 100kW Titanium BJ10/2008-EZ02/2009
- Lari
- Zkušený

- Příspěvky: 1490
- Registrován: 02.02.2008 03:18
- Bydliště: Jihlava
Re: digiklima mondeo funkce před a po FL
To je podle mě blbost..mrknu do schematu,ale jestli si tam před rtím automatickou klimu měl,tak tam to čidlo bylo originál..
Byl-Ford Focus 1,8 TDDi r.v. 2000,16" ALU, xenony,,4el.okna,,BC, webasto, EIBACH,ST170 LOOK, DIGI klima, motor 1,8TDCi 85kW,tempomat,ABS,ASR

- jenikl
- Nováček

- Příspěvky: 177
- Registrován: 19.08.2010 20:26
- Bydliště: Heřmanova Huť, Plzeň-sever
Re: digiklima mondeo funkce před a po FL
Měl jsem tam tuhle
Ford C-Max 2,0 TDCi 100kW Titanium BJ10/2008-EZ02/2009
- jenikl
- Nováček

- Příspěvky: 177
- Registrován: 19.08.2010 20:26
- Bydliště: Heřmanova Huť, Plzeň-sever
Re: digiklima mondeo funkce před a po FL
Ale u ní jsem při přepojování našel jen k přepíchnutí pin jak jsem psal o několik řádek nahoře.. A ty dvě čidla na zůstaly neobsazený..
Ford C-Max 2,0 TDCi 100kW Titanium BJ10/2008-EZ02/2009
- Lari
- Zkušený

- Příspěvky: 1490
- Registrován: 02.02.2008 03:18
- Bydliště: Jihlava
Re: digiklima mondeo funkce před a po FL
Tak pak stačí to vrchní....Mrknui na to schema..To je Tvoje původní..
Byl-Ford Focus 1,8 TDDi r.v. 2000,16" ALU, xenony,,4el.okna,,BC, webasto, EIBACH,ST170 LOOK, DIGI klima, motor 1,8TDCi 85kW,tempomat,ABS,ASR

Kdo je online
Uživatelé prohlížející si toto fórum: Žádní registrovaní uživatelé a 0 hostů

